10803 - Cherubine
- € 398.000,00
- In vendita
In zona centrale della frazione di Cherubine, proponiamo villa singola di nuova realizzazione con ampie possibilità di personalizzazione. Costruita con le più innovative tecnologie per efficentamento energetico. A partire da 398.000,00 €.
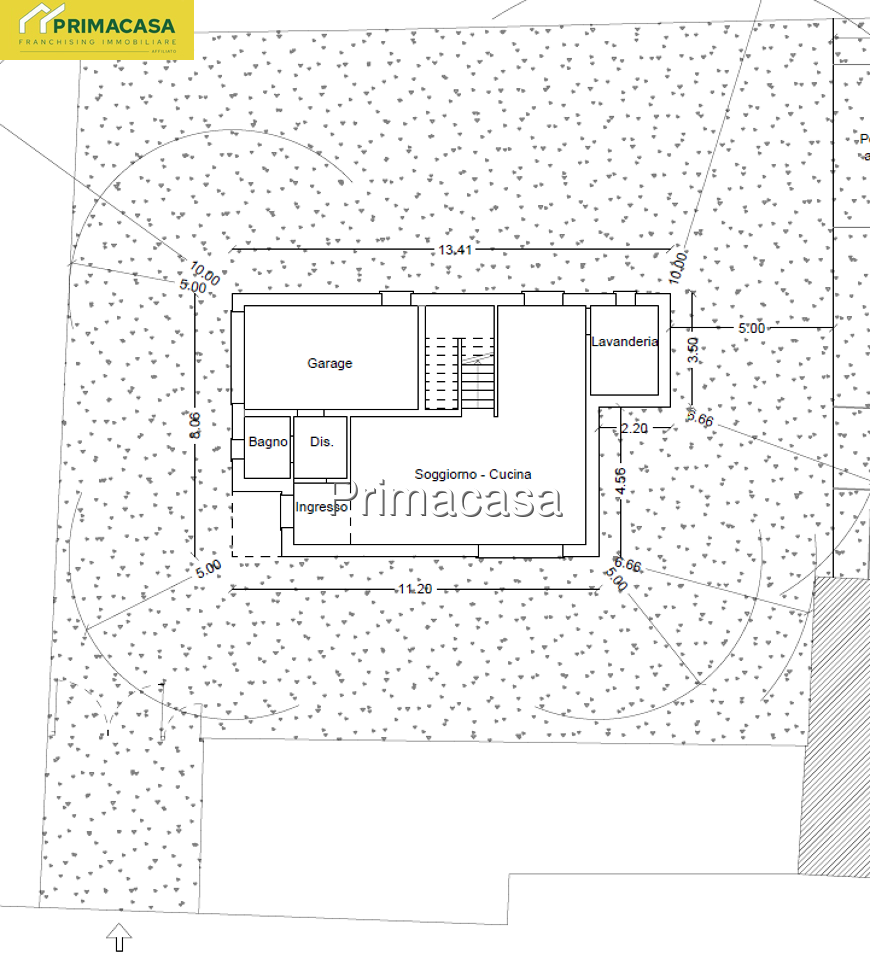
La struttura verrà costruita in acciaio e completamente antisismica. Internamente sarà composta a piano terra da ampia zona giorno open space di oltre 40 mq, spaziosa lavanderia, servizio e comodo garage; al piano primo saranno presenti due stanze da letto per i ragazzi, bagno e una camera padronale con cabina armadi, servizio e terrazzino privato per il massimo della privacy di coppia. Sarà inoltre presente un'ulteriore terrazzo di 7 mq. Il giardino, di oltre 400 mq è ideale per i momenti di relax e svago con possibilità di far realizzare dalla ditta costruttrice una splendida piscina ad effetto naturale. Sarà possibile scegliere le finiture su un vasto campionario di pavimenti, rivestimenti, porte e accessori per bagno. Oltre alle finiture, in accordo con la ditta costruttrice, sarà possibile apportare modifiche alla disposizione degli ambienti in base alle proprie esigenzie, compatibilmente con la normativa attuale. Per quanto riguarda il risparmio energetico, saranno adottati tutti i migliori e avanzati sistemi in materia così da permettere ai futuri proprietari un'abitazione con impatto zero sull'inquinamento e consumi bassissimi. L'abitazione sarà dotata di impianto fotovoltaico di 6 kWatt che andrà ad alimentare anche la pompa di calore aria acqua per il riscaldamento e il raffreddamento, entrambi a pavimento. Presente inoltre la colonnina per la ricarica di auto elettriche o ibride.
Caratteristiche principali
Efficienza energetica
Stampa annuncio
- Scarica la scheda dell'immobile Scarica
Accessori
Indirizzo e mappa
Via dei mori 2/B - Cerea, Verona
